Предприятием ООО «ВОДТЕХ» разработаны разделы проектной документации по объекту «Учебный корпус в составе клинического госпиталя «Лапино» производительностью 275 м3/сут.
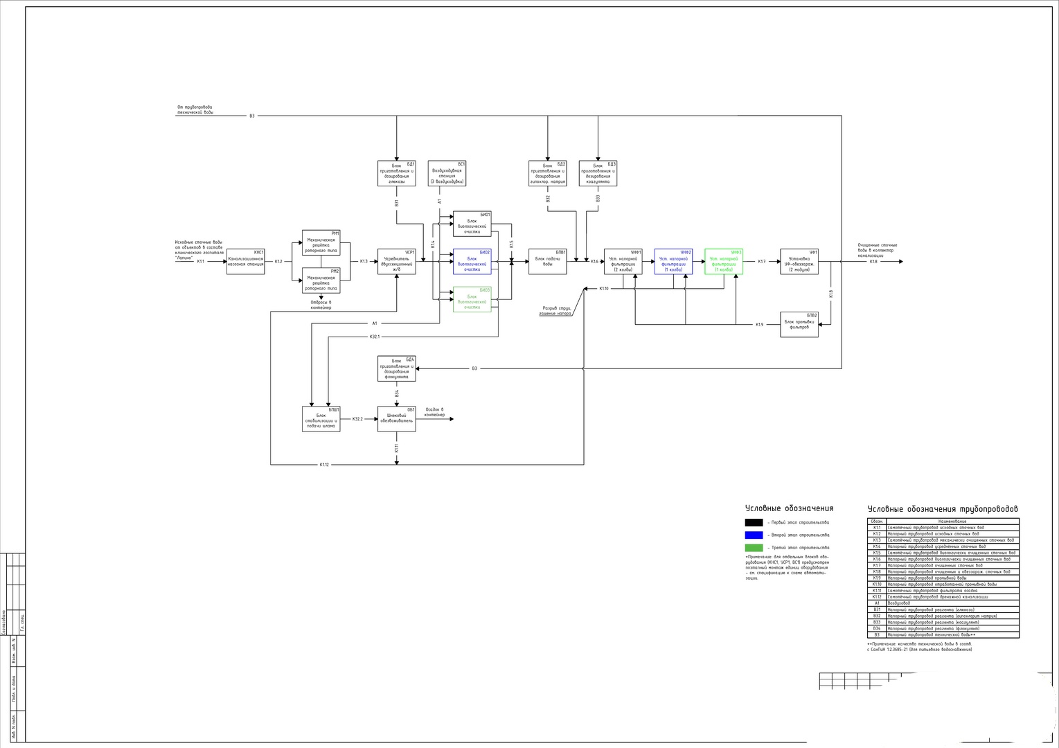
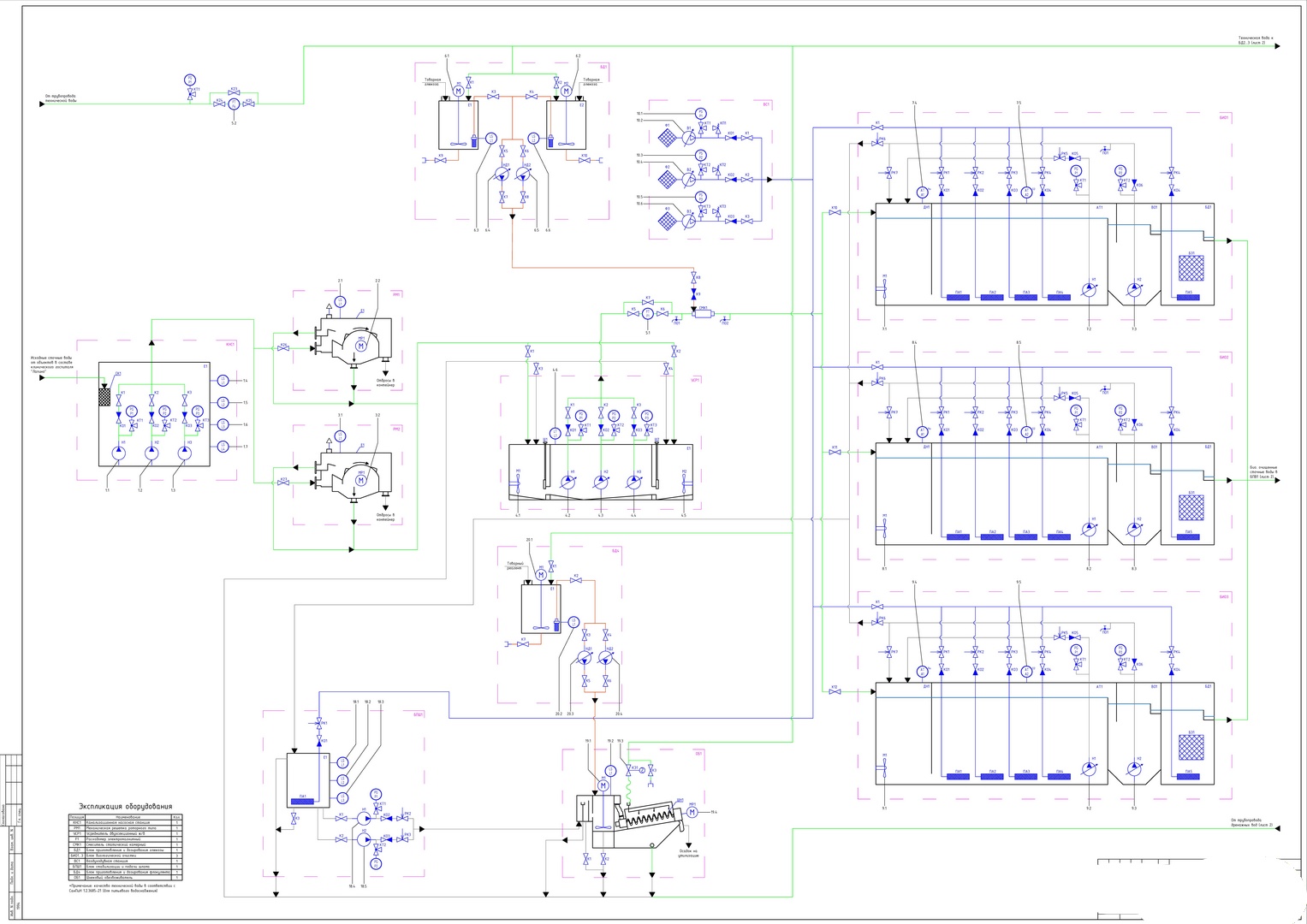
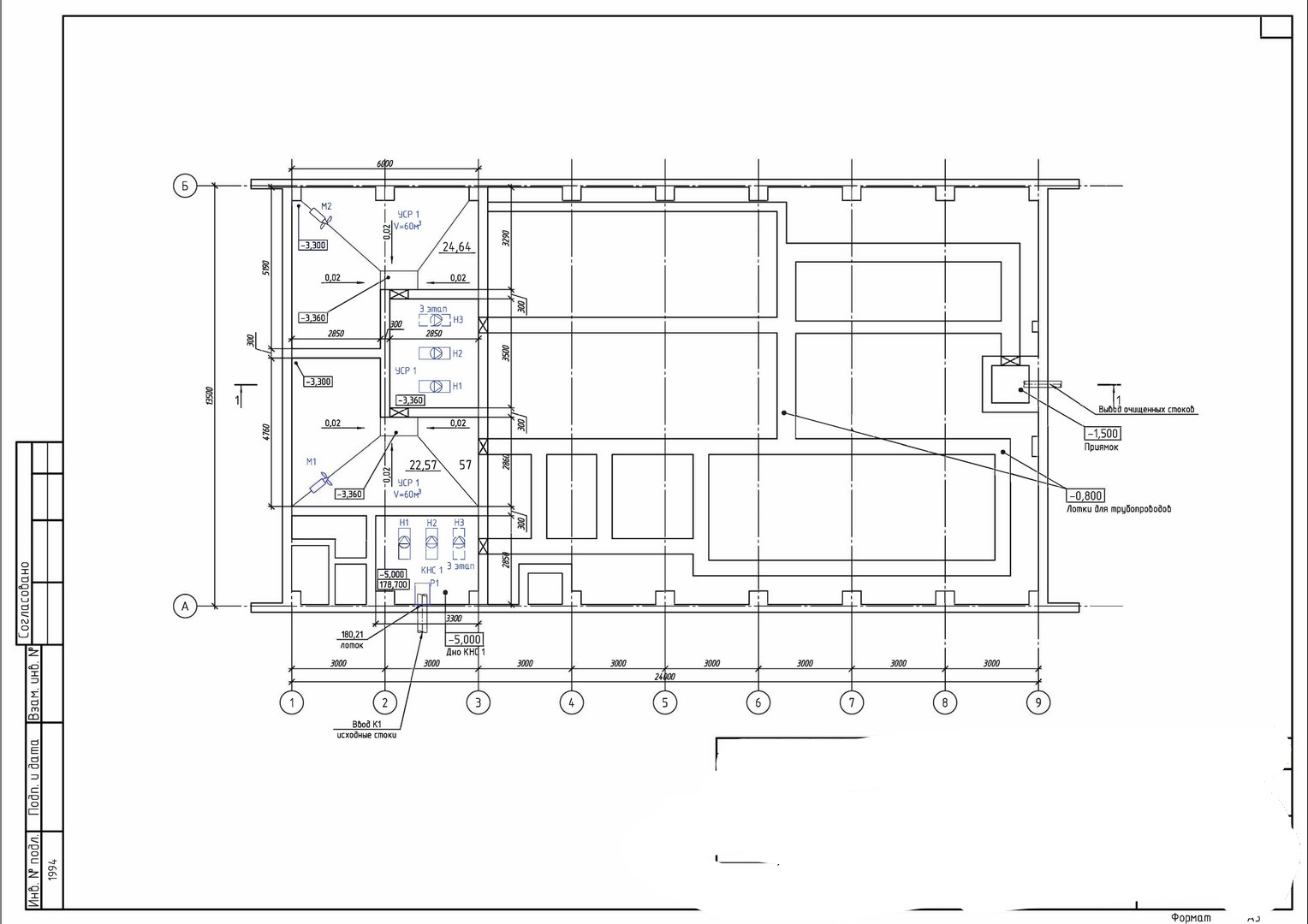
Проектируемые канализационные очистные сооружения (в составе проектируемого клинического госпиталя) предназначены для очистки смешанных сточных вод до норм сброса в водный объект. Технологическая схема очистки сточных вод включает в себя узел механической очистки, усреднения, полной биологической очистки с денитрификацией и химическим удалением фосфора, узел доочистки на механических фильтрах, УФ-обеззараживание.
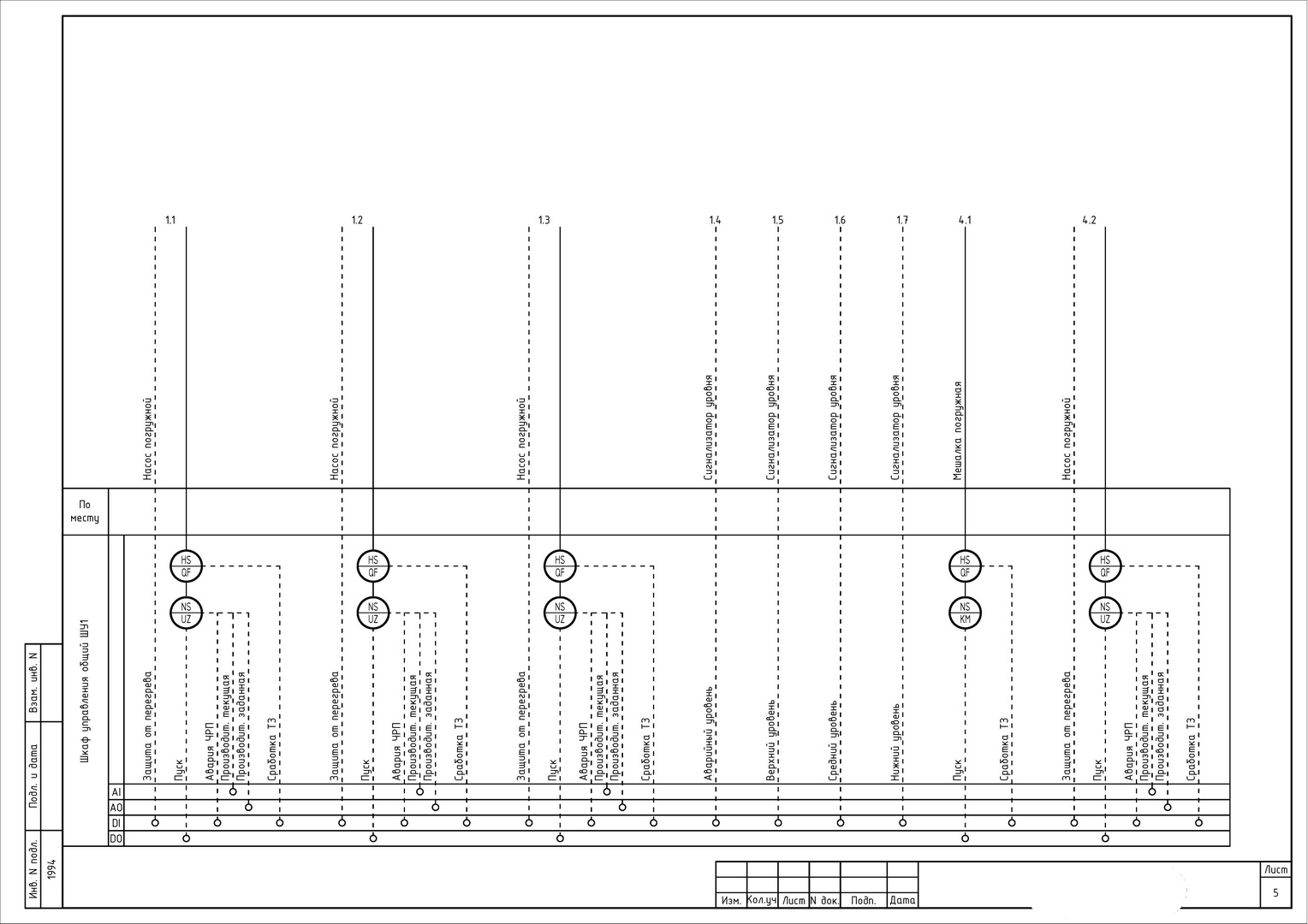
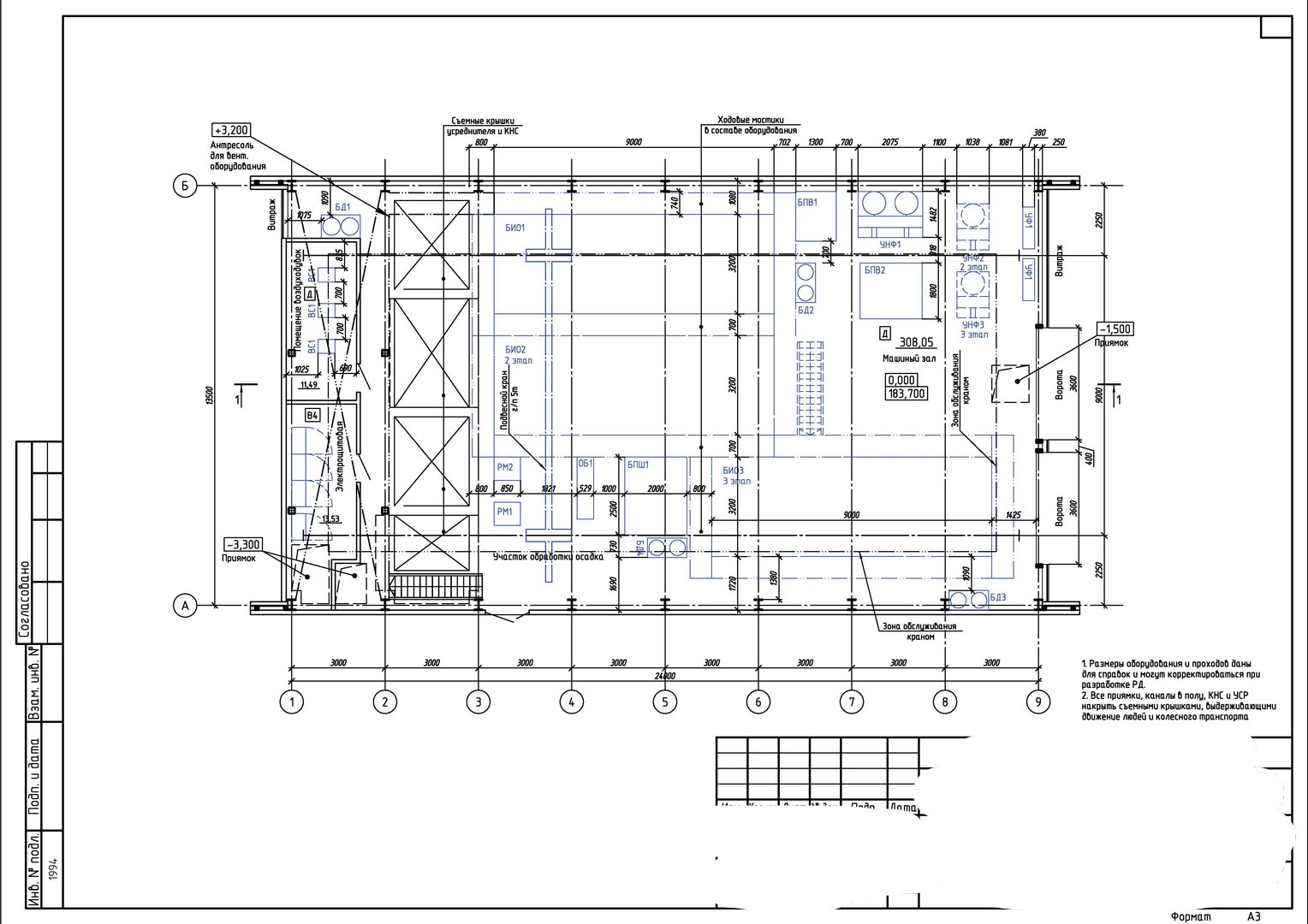
Нашим предприятием разработаны разделы проекта: 5 (подр. ИОС1 — ИОС5), 6 (ТХ), включающие в себя разработку технологических и основных конструктивных решений, систему автоматизации и инженерно-технического обеспечения. Проектная документация разработана в строгом соответствии с ПП №87, получено положительное заключение экспертизы.








